Ph. 208.724.0555
RCE-22662
Home
About
About The Builder
Meet the Team
Our Homes
Available Homes
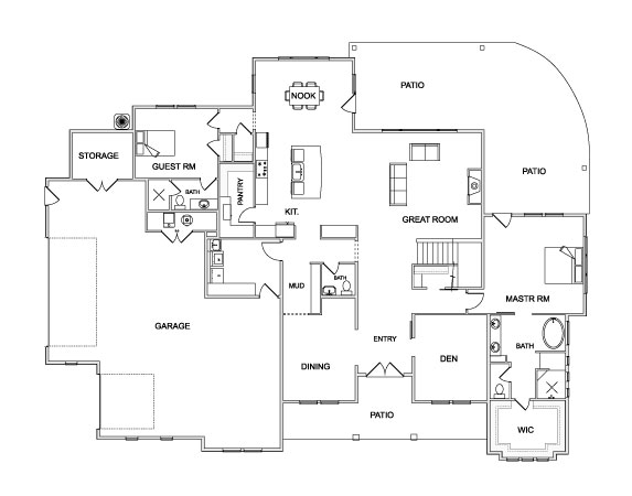
Floor Plans
Single Level/or Bonus
Two Story
Multi Generational
Gallery
Our Process
Testimonials
Communities
Warranty
Our Process
Warranty Request
Project Login
Contact
SOLITUDE HOMES
Ph.
208.724.0555
| E.
info@solitudehomes.com
9601 W State Street #108 | Boise. Idaho. 83714
RCE-22662